
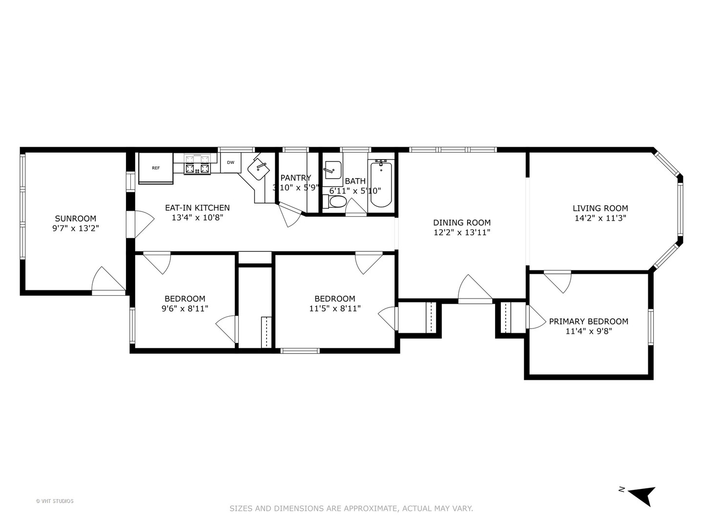
Wow what a Price ! Stately large brick 2 flat located in a popular Lakeview location! Steps to award winning Bell school and Lane Tech ! Beautiful solid oak woodwork & oak beamed ceiling ! Large eat-in kitchens and a large bonus room off the kitchens which can be a den or office.Convenient walk-in pantry in both units and large window box in top floor kitchen. Beautiful oak built-in cabinets and gardwood floors all add to the vintage ambiance. Full partially finished basement with entrance from inside first floor unit whic lends itself to expansion of lower level living space. This home has been lovingly cared for since 1940 by same family ! Check out the pictures and floor plan! Lovely partially fenced back yard with flower garden and a brick 2 car garage with remote opener. A pleasure to show and sell!
| MLS # | 12480159 |
|---|---|
| Listing Type | For Sale |
| Sub-Type | Resale |
| Status | Active Under Contract |
| Year | 1916 |
| Days On Site | 46 |
| Listing Provided By | Baird & Warner | Joan Brennock |
| Bed(s) | 5 |
|---|---|
| Bath(s) | 3 |
| Garage | 2 |
| Basement | Y |
| Rooms Total | 11 |
|---|---|
| Heating | Natural Gas, Radiant |
| Exterior Features | Lighting |
|---|---|
| Roof | Flat |
| Foundation Details | Concrete Perimeter |
| Lot Features | Garden |
| Construction Materials | Brick |
| Fencing | Fenced |
| Parking Features | Garage Door Opener, On Site, Garage Owned, Detached, Garage |
|---|---|
| Garage Spaces | 2 |
| Utilities | Cable Available |
|---|---|
| Sewer | Public Sewer, Storm Sewer |
| Community Features | Park, Curbs, Sidewalks, Street Lights, Street Paved |
|---|
| Tax Year | 2023 |
|---|---|
| Tax Annual Amount | 14232 |
| State | IL |
|---|---|
| County | Cook |
| City | Chicago |
| Zip Code | 60618 |
| Area | CHI North Center |
| Community Name | Roscoe Village |
| School District | Lake View High School |
| Elementary School | Bell Elementary School |
| High School | Lake View High School |
| State | IL |
|---|---|
| County | Cook |
| City | Chicago |
| Zip Code | 60618 |
| Area | CHI North Center |
| Community Name | Roscoe Village |
| School District | Lake View High School |
| Elementary School | Bell Elementary School |
| High School | Lake View High School |